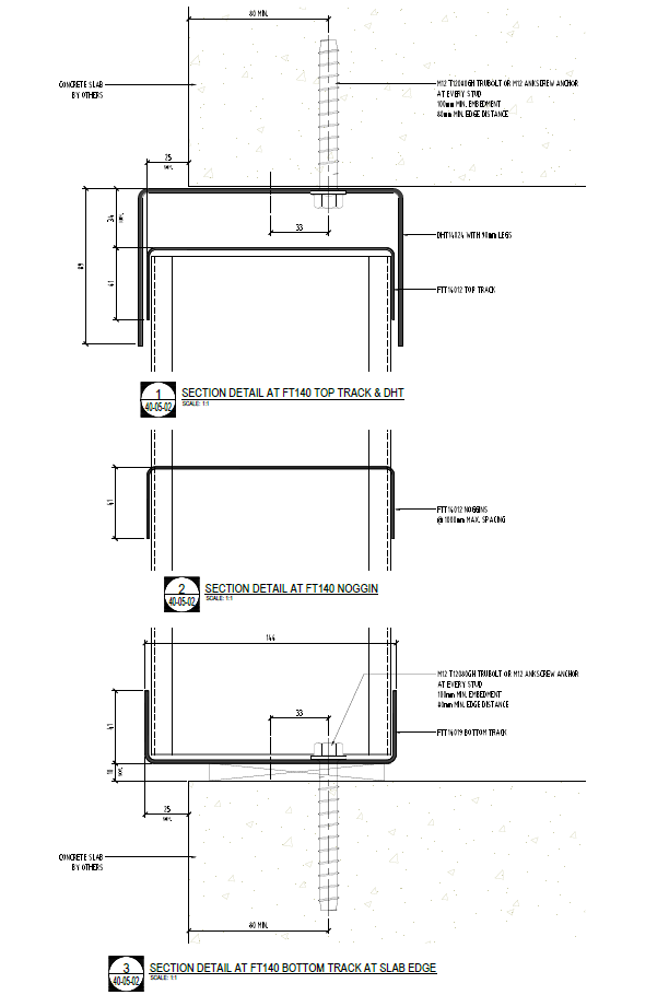
Slab-to-Slab Framing
Frame-Tek’s innovative slab-to-slab framing system designed to span the full height between concrete slabs. This is not conventional light-gauge framing, it uses our proprietary heavy gauge sections designed to handle high wind loads, large window openings, and remove structural steel from the façade line.
An optional pre-backpan provides early weatherproofing, allowing internal trades to begin sooner.





