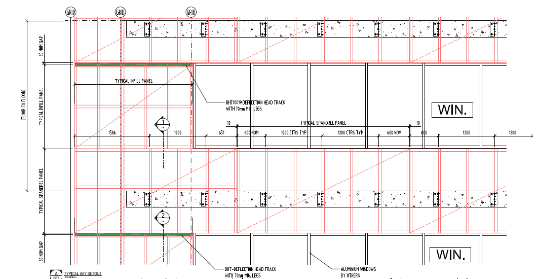
Off-Slab Framing
Frame-Tek’s Optim Series is a prefabricated off-slab framing system designed as an alternative to traditional curtain wall. Engineered to hang off the slab edge, it provides a fast, consistent, and efficient solution for multi-storey façades, especially those with continuous strip windows.
Made up of spandrel and infill framing between windows, this system eliminates the need for structural steel within the façade package and can be supplied pre-fixed with backpan for early weatherproofing. The result is a clean, streamlined façade solution that simplifies installation and saves time on site.





